设计师榨干空间
为艺术家造一个艺术之家
●●●

28㎡艺术家公寓设计案例
公寓的主人是一个年轻的艺术家,年轻与艺术联系在一起,能够年少成名是少数,怀才不遇是大多年轻艺术家的境遇。所以28㎡的小公寓要尽量满足这位未成名的艺术家的一切需求,可以工作、可以娱乐、可以休息、可以做饭······设计师Ani Yenokyan面临这项重大挑战,她,能成功吗?
小房子,大智慧
充满艺术的家
▼

空间类型:公寓
空间面积:28.5㎡
空间高度:3.8m
空间风格:简约现代
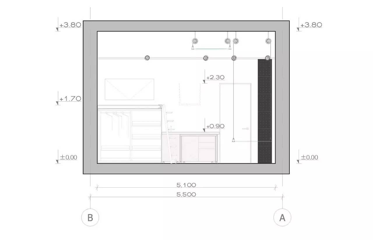
▲这个角度纵观整个空间可以得到一些信息,首先设计师利用3.8m的层高做出了一个简易loft的设计。端面墙面+木质饰面是空间审美的简化,鹅黄色沙发舒适柔软,更容易放松心情。


▲这个角度的特写,可能表达的更为真切,设计师对整个空间从横向到纵向都做相当多的思考,对应平面图会了解的更清楚些。

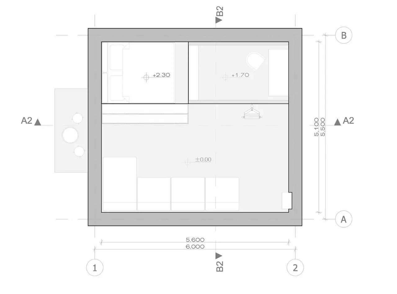
一层、二层功能区划分图
▲简单的将小公寓的空间按平面划分,可以看出公寓一层主要是客厅、卫生间以及存储和餐厨空间;二层是卧室和工作区。


▲如果仅仅将客厅当成休闲娱乐的空间,那你就错了。将沙发搬空,这里是艺术家可以发挥创意的地方。

▲在地面上发挥不过瘾,还可以悬挂在墙面上,爬高登梯接着画。

▲不必担心绘制出的作品无处安放,聪明的设计师在天花大胆运用滑轮装置,形成一个天花画廊的效果,这个创意真是万万没想到啊。

天花滑轮装置立面图

▲刚刚一定在疑惑,木饰面的背后竟然能将储物空间和餐厨空间全部做进去,怎么做到的,好吧,就是这么做到的。开启第一道门,提供了熨烫、储存被褥、放置清洁卫生用品等功能。

▲拉开第二道门,简易衣帽间就是这里了。

▲最精彩的在这里,一眨眼的功夫,一个厨房诞生了。

▲餐厨空间也就是三、四、五道门后的玄机。三道门分上下两层,放置嵌入式冰箱;第四栏上方放置烤炉和微波炉,下方放置消毒碗柜;五道门也是分为上下两处,上方是调味品,下方可拉出一个简易厨房操作台,操作台上方的抽油烟机是固定的,外观精致小巧,与整体空间相配,这一切是不是很神奇。

▲2楼卧室悬空处设计了一个钢制玻璃书架,滞空感的设计非常具有艺术家的冒险精神。

▲看似平淡的平台工作区,其实暗藏玄机。墙上看似固定的桌子其实是可掩藏的;脚下的平台开启,内置容量惊人的储物空间;三五好友来访时也不用担心睡觉问题,小地台可以化身成打地铺。


▲卫生间延续缎面木饰面墙的设计,与大理石墙地面结合,生成一个绝对简约的现代品质空间。而能够做到这样绝对的简约,源自于墙面背后隐藏的“秘密”。

▲如果以上设计还不够让你觉得精彩的话,夜间来个投影家庭影院怎么样?啤酒、炸鸡+电影的组合爽翻了!

一层平面布置图

二层平面布置图
泛建联盟编辑整理
--- END ---